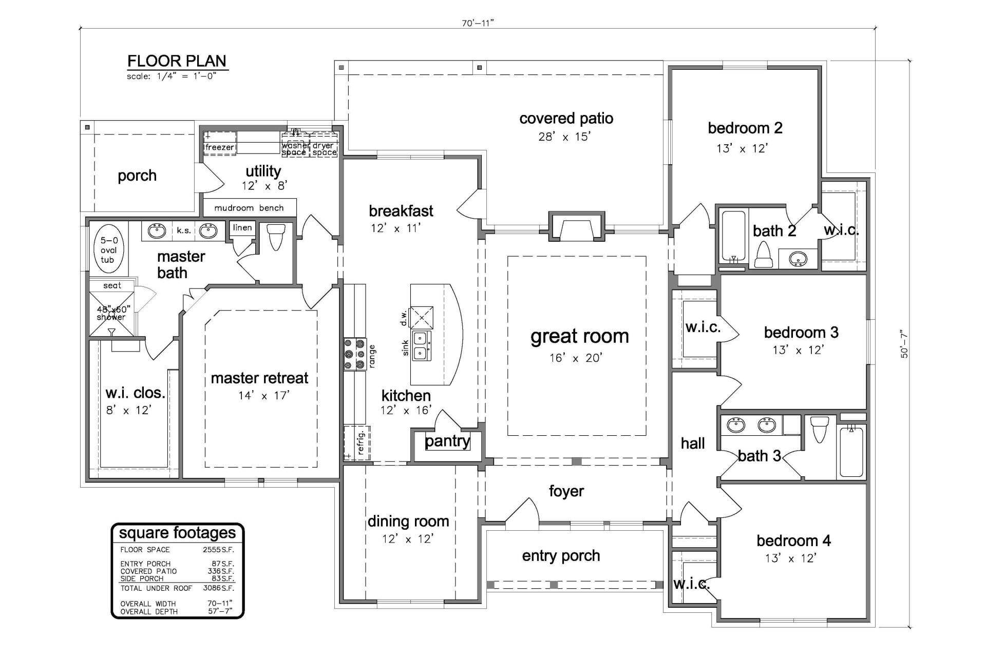
Model #2555
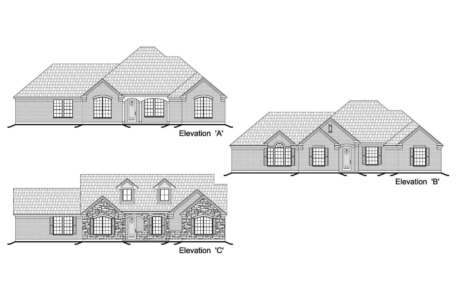
Elevations
Now, you can print this model floor plan and elevation. Take the document to your Sales Consultant for a faster service.
Sales Consultant:
Kris Dominguez 281-813-8814
PLAN, PRICES, SPECIFICATIONS SUBJECT TO CHANGE WHITEOUT NOTICE. SEE SALES COUNSELOR FOR DETAILS. ALL FLOOR PLANS AND EXTERIOR RENDING ARE ARTIST’S CONCEPTIONS.. ALL DIMENSIONS ARE APPROXIMATE. FLOOR, PLANS ROOM SIZE, EXTERIORS AND STANDARD FEATURES MAY VARY BASED ON THE ELEVATIONS AND OPTIONS SELECTED. DEBO HOMES, LLC RESERVE THE RIGHT TO MODIFY ALL PLANS AND SPECIFICATIONS WITHOUT NOTICE OR OBLIGATION.






